Не упусти свой шанс! Последние акции от застройщиков  ▼

Продается 1-комнатная квартира, Красноказарменная ул., 14Ак6

22 400 000 Р

Красноказарменная ул.14Ак6

Дата публикации: 24 марта 2026

Дата обновления: 4 апреля 2026

Телефон: 
Показать телефон

+7 (499) 372-92-13

Агентство:  МИЭЛЬ

От застройщика: 0 квартир в продаже

Этаж: 23 / 23

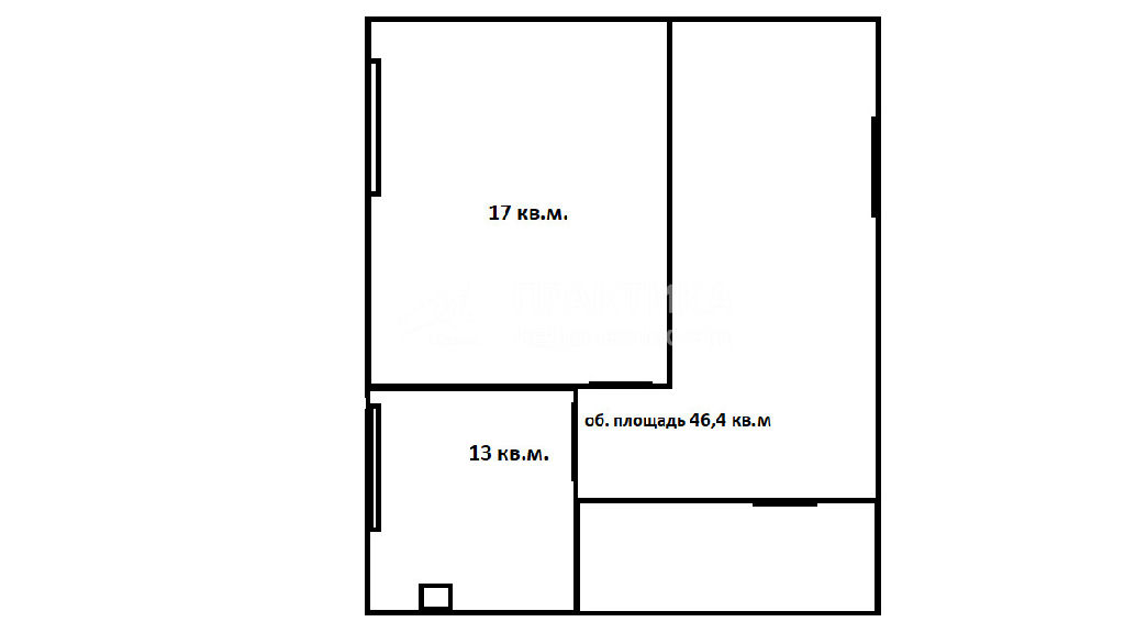
Общая: 46,4 м2

Жилая: 17 м2

Кухня: 13 м2

Комнаты: не указано

Балкон/лоджия: не указано

Лифт: есть лифт

Окна: окна на улицу

Санузел: совмещенный

Мусоропровод: не указано

Состояние квартиры: хорошее состояние

Тип дома: монолитный

Год постройки: 2021

Территория: огороженная

Парковка: не указано

Статус сделки: продажа

Сделка: прямая продажа

Собственность: не указано

Основание права собственности: не указано

Описание

Код объекта: 2084999.Продается однокомнатная уютная, светлая квартира в ЖК "Лефортово парк". Квартира:изолированная спальнякухня 13 кв.мвысокие потолки 2.9 мсанузел совмещенныйпросторный холл Квартира расположена на 23 этаже, из окон открывается прекрасный панорамный вид. Светло и тихо. В квартире выполнен хороший косметический ремонт. Просторная кухня позволяет оборудовать ее всей необходимой техникой и поставить уютный диванчик. Просторный холл позволяет разместить в нем гардеробную группу. Дом:дом 2021 года ЖК "Лефортово парк", застройщик ПИК Закрытый двор, оборудованный детскими и спортивными площадками. Имеется подземная парковка. Въезд в комплекс через шлагбаумы. Транспортная доступность:5 минут пешком до м. Авиамоторная (Калининская линия)4 минуты пешком до м. Авиамоторная (БКЛ)развитая система наземного городского транспорта Инфраструктура:рядом расположены несколько школ, детских садов, поликлиникв пешей доступности различные магазины, кафе, аптеки, ТРЦ "Город"в пешей доступности находятся МЭИ и НИУ ВЭИв пешей доступности парк "Зеленая река", сквер Калинина5 минут пешком офис "Мои документы" Условия сделки:один собственниксвободная продажабез обременений Квартира подойдет для молодой семьи, студентов, будет хорошим вариантом для инвестиций в недвижимость. Мебель и техника остается новым владельцам. Преимущества МИЭЛЬ:Прекрасная квартира для комфортной жизни, звоните и приезжайте на просмотры в удобное для вас время! Покупателю выдаётся правовой сертификат, гарантирующий юридическую чистоту объекта. Возможна ипотека с особыми условиями для клиентов МИЭЛЬ от банков-партнеров, работаем с любыми источниками финансирования (материнский капитал, военный сертификат и т.д. Бонусы по партнерским программам МИЭЛЬ на товары и услуги от известных брендов. МИЭЛЬ - гарантия комфортной и безопасной сделки для вас.

Квартира на карте

ПанорамыКарта
Спецпредложения
Добавить объявление